8-800-35-05-875 info@lhouse.com.ru
корзина пуста
8-800-35-05-875   Звонок бесплатный +7-978-123-90-43  пр. Победы 43 +7-978-091-95-59  ул. Генерала Васильева, 43 +7-978-943-33-73  ул. Бородина, 73

Потолочный светильник Lightstar Rullo 216486

Цена:   1472 руб
1399 руб
Вы экономите: 73 руб (5%)
Производитель Lightstar
Страна Италия
Серия Rullo
Артикул 216486
СтильХай-тек
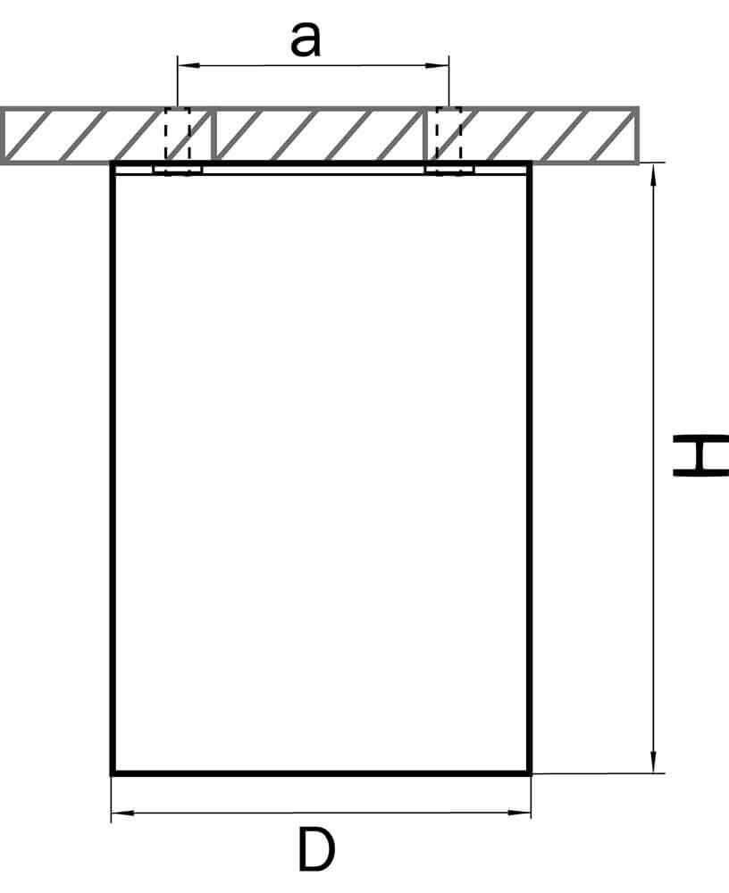
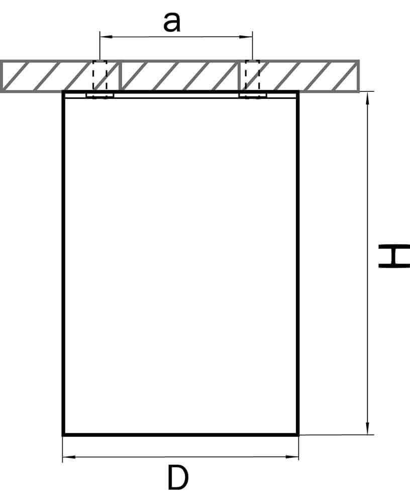
Высота, мм150
Диаметр, мм80
ЦокольGU10
Тип лампочкиГалогеновая
Количество ламп1
Мощность лампы, W50
Общая мощность, Ватт50
Напряжение220-240
МатериалМеталлические
Материал арматурыМеталл
Материал плафона/абажураМеталл
ЦветБелый
Цвет арматурыБелый
Цвет плафонаБелый
Форма плафонаЦилиндр
Степень защитыIP20
Место установкиНа потолок
Место примененияДля магазина
Гарантия12 месяцев

Чтобы купить потолочный светильник Lightstar Rullo 216486, оформите покупку в четыре клика через корзину